Обяви За нас Контакти
Продава КЪЩА
град София, с. Лозен
519 000 €
1 015 075.77 лв.

(1 854 €, 3 626.11 лв./m2)
Цената е с включено ДДС
История на цената
Публикувана в 10:38 на 14 януари, 2026 год.
Обявата е посетена 348 пъти.
Площ:
280 m2
Двор:
280 m2
Етаж:
0 от 3
ТEЦ:
Лок.отопл.
Строителство:
Тухла, 2025 г.

Описание на имота:


Агенция за недвижими имоти АВЕНДА предлага за продажба прекрасна дизайнерска къща с Акт 16, в близост до царския дворец Врана.
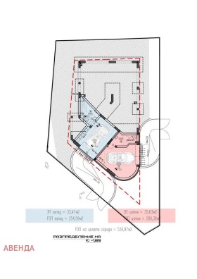
Къща Изток е с разгърната застроена площ от 280 кв.м. и двор от 123 кв.м. с изложение юг/изток/север, със следното разпределение на 4 нива, както следва:
Сутерен: подземно ниво с гараж, склад и котелно със застроена площ 35,6 кв.м.
Етаж 1 - партер: входно антре, кухненска зона 9 кв.м., дневна с трапезария и стълбище към втория етаж (емпоре) от 30кв.м., спалня 14 кв.м. и баня с тоалетна. Обща застроена площ на партерно ниво 83 кв.м.
Етаж 2: на второ жилищно ниво има две спални., всяка с излаз на отделен балкон и две бани с тоалетна. Обща застроена площ на втори етаж 100 кв.м.
Етаж 3: спалня - 18 кв.м. с прекрасна тераса от 27 кв.м. с панорамна гледка към парк Врана , Стара планина на север и Лозенската планина на изток. Обща застроен площ на втори етаж кв.м. 62 кв.м.
Двор: озеленено простанство от 123 кв.м.
Отоплението е предвидено с опция за инсталиране на термопомпа и/или котел на пелети или газ. Прозорците са френски, 6 камерна ПВЦ дограма K?mmerling троен стъклопакет. Фасадите са изпълнени с 12 сантиметрова топлоизолация с покритие от минерална мазилка и италиански гранитогрес. Изолацията на покрива е изпълнена с 25 см. каменна вата.
За сградата: от затворен тип, с модерна концепция и акцент върху детайла, и използваните материали. Съвременни архитектурни и строителни решения, без компромис в изпълнението. На площ от близо 800 кв.м са разположени две еднофамилни къщи, ръзгърнати на 4 етажа. Сградата разполага със собствен попивен сондаж, който отвежда излишната отработена вода от пречиствателните станции на всяка от къщите. Изградена поливна система за зелените площи. Локацията е избрана така, че да бъде леко встрани от шума на централните улици и в същото време да е близо до всичко необходимо. Итер Експо център е на 8 мин. с автомобил, Орлов мост е на 15 мин. Обособени външни паркоместа на границата на имота. Къщите са заобиколени от зеленина и ниско строителство, с прекрасни гледки на юг към Лозенската планина и Витоша, на север към парк Врана и Стара планина.
За Врана-Лозен-Триъгълника: местността е разположена между Южната дъга и бул. Цариградско шосе и е застроена предимно със семейни къщи, като близкото разстоянието от урбанизирана София, го правят предпочитано място за живеене. Основно предимство е, че живееш на спокойно място, което ти дава локацията, но имаш близостта на големия град. Само на 15 мин. от центъра на София с автомобил. Изградената инфраструктура осигурява удобен достъп до Южната скоростна тангента и бул. Цариградско шосе , оттам към всички магистрали. Спирка на градския транспорт в близост, с автобусна линия 5, която има директна връзката с метространция Интер експо център . Местоположението дава прекрасна възможност за хора търсещи тишина и спокойствие, на една ръка разстояние от големия град.
Агенцията работи с комисион в размер на 3% от продажната цена. Предлагаме безплатна консултация и съдействие за одобрение и усвояване на ипотечен кредит при преференциални условия, чрез услугите на най-големия кредитен консултант в страната. За огледи се свържете с нашия водещ брокер: Радослав Цолов, моб.: 0886 285 766
Особености
Тухла
За контакт:
0886285766
Брокер:
Радослав Цолов
0886285766
Офис: гр. София, ул. Университетски парк 9
Още оферти от брокера: Продава | Дава под наем | Купува | Наема
Агенция:
АВЕНДА
0876999123; 0885065445
АВЕНДА logo
Медал за прослужено време
В imot.bg от 2013 г.
avenda.imot.bg
Адрес:
област София, гр. София, ул. 'Университетски парк' 9, партер
ИЗПРАТИ ЗАПИТВАНЕ
ИЗПРАТИ ЗАПИТВАНЕТО

Продава КЪЩА
град София, с. Лозен
Обява: 1j176837993397843

519 000 €
1 015 075.77 лв.
История на цената
(1 854 €, 3 626.11 лв./m2)

Цената е с включено ДДС
ЗАПАЗИ ОБЯВАТА

Местоположение: град София, с. Лозен

Допълнителни данни за имотите в района и сравнение с други райони

Покажи

Период

и 1 месец

* Средните цени са определени чрез медианна стойност